Colibă

Zonă: câmpie sau deal

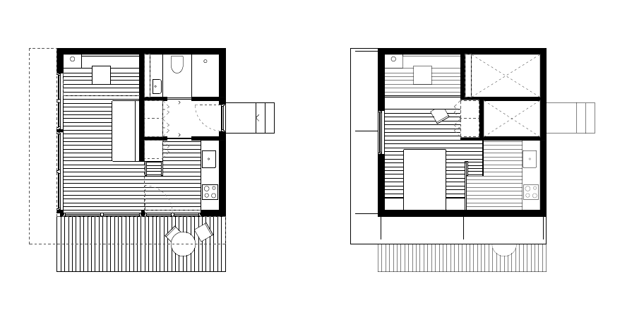
Adăpostul poate fi inserat atât într-un peisaj restrâns, înconjurat de vegetație densă sau de un fond construit izolat, cât și într-unul mai deschis, cu pajiști întinse sau pe culmi de deal. Orientarea pe două laturi permite o privire ațintită către colț și se extinde cu o terasă. La etaj, sub acoperișul format dintr-un singur plan, își face loc o supantă, unde se află un loc de odihnă. Construcția poate căpăta diferite „piei”: materialele fațadei sau ale terasei pot fi diferențiate în funcție de zonă. Forma geometrică simplă duce cu gândul la un saivan acoperit cu tablă.