Șură N

Relief: zonă deluroasă sau de câmpie, în apropierea resursei de lemn

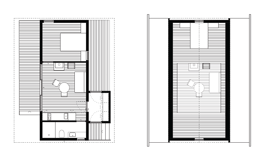
Șura este inspirată din peisajul zonei Nucșoara, populat preponderent cu anexe organizate pe două registre: partea superioară pentru depozitarea furajelor și partea inferioară pentru adăpostirea animalelor. Spațiul de sub acoperiș este speculat și devine locuire, un spațiu de dormit deschis, pe suprafața unei supante. Acest spațiu „de sus”, diferit, dar care comunică cu cel de jos, de zi, având o amprentă mai mare decât acesta, oferă locuri ascunse și potențialul unei utilizări libere. Prin siluetă, materialele folosite și modul de utilizare a spațiului, adăpostul este foarte similar cu o posibilă șură existentă, convertită în locuință.